Acasă / Imobile în vânzare /Buiucani Vasile Lupu
Apartament, Buiucani, VASILE LUPU
54 m²
Camere: 3
Băi: 1
Nivel: 2/4
104 900 €
1943 €/m²
54 m²
Camere: 3
Băi: 1
Nivel: 2/4
Proprietăți
Regiune
Chișinău, Buiucani
Adresa
Vasile Lupu
Construcție
Veche
Stare
Reparație euro
Suprafață
54.00
Camere
3
Nivel
2/4
Băi
1
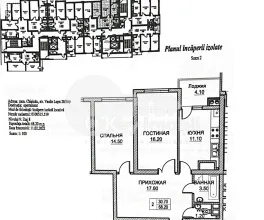
Descriere
Spre vânzare apartament amplasat în sectorul Buiucani, str. Vasile Lupu.
Imobilul are suprafața de 54 mp, fiind poziționat în bloc secundar la etajul 2 din 4.
Este compartimentat în: 3 camere, living, bucătărie, bloc sanitar, balcon, antreu.
Imobilul are suprafața de 54 mp, fiind poziționat în bloc secundar la etajul 2 din 4.
Este compartimentat în: 3 camere, living, bucătărie, bloc sanitar, balcon, antreu.
Facilități:
– reparație euro;
– dotat cu tehnică;
– mobilat complet;
– geamuri termopan;
– comunicații conectate.
– reparație euro;
– dotat cu tehnică;
– mobilat complet;
– geamuri termopan;
– comunicații conectate.
Locație superbă – ceea ce îl face foarte atractiv pentru o viață confortabilă.
Alte caracteristici
Cablu TV
Geamuri termopan
Interfon
Linie telefonică
Supermarket
Uşă blindată
Balcon
Grădiniţă
Internet
Școală
Teren de joacă
Atenție! Clienții care aleg să cumpere prin O’Key Imobil se bucură de o gamă completă de servicii profesionale, oferite fără niciun cost suplimentar:
- Analiză corectă a pieței, pentru a ști exact valoarea reală a proprietății dorite;
- Verificare juridică atentă, cu pregătirea tuturor actelor necesare pentru o tranzacție sigură;
- Spațiul perfect pentru diverse tipuri de activități comerciale, logistică, cât și producere etc.
Vreau apartament în ipotecă!
Avem peste 745.000 de apartamente, oficii și terenuri.






















































