Acasă / Imobile în vânzare /alte Ungheni
Apartament, UNGHENI
79 m2
Camere: 2
Nivel: 2/9
79 100 €
1000 €/m2
79 m2
Camere: 2
Nivel: 2/9
Proprietăți
Regiune
Ungheni, alte
Adresa
Ungheni
Construcție
Nouă
Stare
Versiune albă
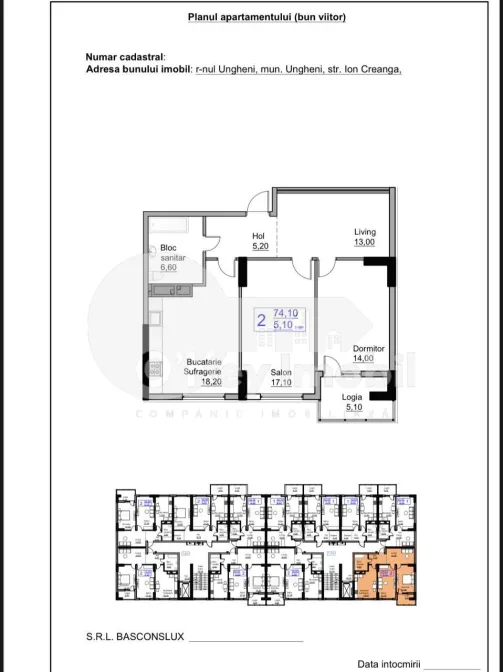
Suprafață
79.10
Camere
2
Nivel
2/9
Descriere
Vă propunem spre vânzare apartament cu 2 odăi situat în noul complex rezidențial din or. Ungheni, str. Ion Creangă.
Locuința măsoară suprafața totală de 79.10 mp și se prezintă în versiune albă.
Apartamentele complexului sunt amenajate cu geamuri termopane și toate au instalate la intrare uși blindate din metal.
Sistemul de încălzire este autonomă.
În locuințe sunt instalate contoare individuale de gaz, apă și electricitate și prize pentru telefon, TV, interfon și internet prin fibră optică.
Carcasa complexului este construită din beton armat.
Clădirea este termoizolată din exterior cu vată minerală. Pereții interiori sunt izolați termic și fonic cu vată.
Blocul este dotat cu ascensoare silențioase moderne.
Complexul locativ dispune de zone verzi individuale și are amenajat un teren de joacă pentru copii. Este înconjurat de puncte sociale, puncte comerciale și locuri de interes pentru toate gusturile.
Atenție! La achitarea integrală prețul este de 950 euro per mp.
La achitarea în rate prețul este de 1000 euro per mp cu achitarea primei rate de 30%.
Darea în exploatare în anul 2028!
Alte caracteristici
Geamuri termopan
Imobil nou
Încălzire autonomă
Atenție! Clienții care aleg să cumpere prin O’Key Imobil se bucură de o gamă completă de servicii profesionale, oferite fără niciun cost suplimentar:
- Analiză corectă a pieței, pentru a ști exact valoarea reală a proprietății dorite;
- Verificare juridică atentă, cu pregătirea tuturor actelor necesare pentru o tranzacție sigură;
- Spațiul perfect pentru diverse tipuri de activități comerciale, logistică, cât și producere etc.
Vreau apartament în ipotecă!
Avem peste 745.000 de apartamente, oficii și terenuri.






































