Acasă / Imobile în vânzare /alte Strășeni
Apartament, STRĂȘENI
79 m2
Camere: 2
Băi: 2
Nivel: 9
79 000 €
1000 €/m2
79 m2
Camere: 2
Băi: 2
Nivel: 9
Proprietăți
Regiune
Strășeni, alte
Adresa
Strășeni
Construcție
Nouă
Stare
Versiune albă
Suprafață
79.00
Camere
2
Nivel
null/9
Băi
2
Descriere
Vă propunem spre vânzare apartament situat în noul Complex Rezidențial din Strășeni. Blocul locativ dispune de o amplasare reușită, ferită de zgomotul urban dar în același timp într-o zonă dezvoltată.
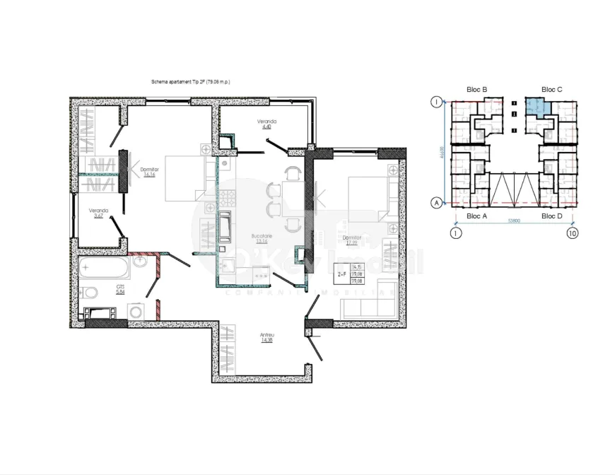
Locuința măsoară o suprafață totală de 79 mp și se prezintă în versiune albă.
Complexul este format din 4 blocuri locative a câte 9 etaje.
Carcasa Complexului este construită din beton armat. Clădirea este termoizolată din exterior cu vată minerală. Pereții interiori sunt izolați termic și fonic cu vată.
Apartamentele Complexului sunt amenajate cu geamuri termopane și toate au instalate la intrare uși blindate din metal. Sistemul de încălzire este autonomă. În locuințe sunt instalate contoare individuale de gaz, apă și electricitate și prize pentru telefon, TV, interfon și internet prin fibră optică.
Complexul Locativ dispune de zone verzi individuale și are amenajat un teren de joacă pentru copii. Blocul este dotat cu ascensoare silențioase moderne ce duc până la parcarea subterană. Complexul locativ este înconjurat de o varietate de puncte sociale, puncte comerciale, zone verzi și locuri de interes pentru toate gusturile.
Alte caracteristici
Balcon
Geamuri termopan
Grădiniţă
Imobil nou
Încălzire autonomă
Interfon
Ascensor
Școală
Supermarket
Teren de joacă
Uşă blindată
Cablu TV
Atenție! Clienții care aleg să cumpere prin O’Key Imobil se bucură de o gamă completă de servicii profesionale, oferite fără niciun cost suplimentar:
- Analiză corectă a pieței, pentru a ști exact valoarea reală a proprietății dorite;
- Verificare juridică atentă, cu pregătirea tuturor actelor necesare pentru o tranzacție sigură;
- Spațiul perfect pentru diverse tipuri de activități comerciale, logistică, cât și producere etc.
Vreau apartament în ipotecă!
Avem peste 745.000 de apartamente, oficii și terenuri.






































