Главная / На продажу /Кожушна Кожушна
Квартира, КОЖУШНА
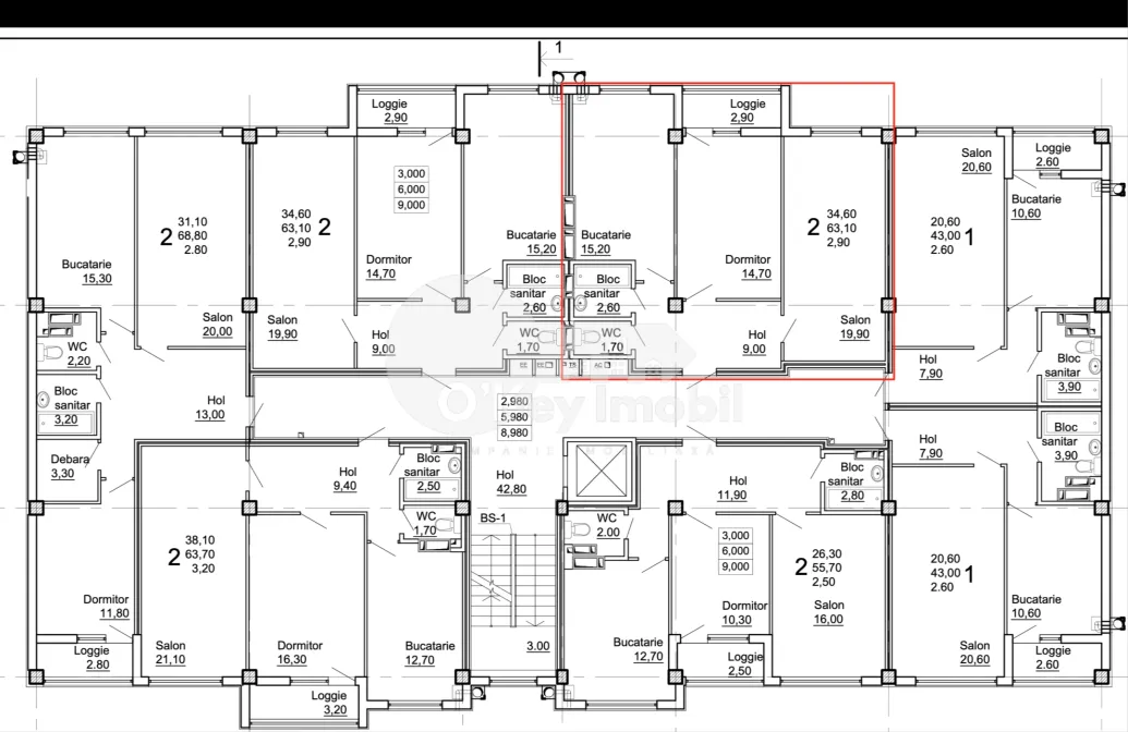
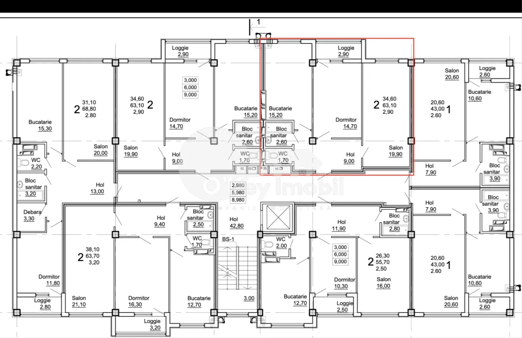
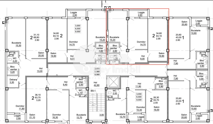
66 м2
Ком.: 2
Сануз.: 1
Этаж: 5/5
62 700 €
950 €/m2
66 м2
Ком.: 2
Сануз.: 1
Этаж: 5/5
Характеристики
Регион
Страшены, Кожушна
Адрес
Кожушна
Строительство
Новое
Состояние
Белая версия
Площадь
66.00
Комнаты
2
Этаж
5/5
Санузлы
1
Описание
Продается квартира, расположенная в новом комплексе Cojusna Village, построенном компанией Basconslux.
Недвижимости общей площадью 66 квадратных метров представлена в белом варианте.
Жилой комплекс имеет удачное расположение, вдали от городского шума, но в то же время в развитом районе.
Дом состоит из 3 жилых блоков по 5 этажей каждый. Имеется лифт и подземная парковка.
В квартирах установлены стеклопакетые окна, во всех входных дверях установлены бронированные металлические двери. Система отопления автономная.
Корпус комплекса выполнен из железобетона. Комплекс утеплен снаружи минеральной ватой.
Жилой сектор с детским садом и собственными точками необходимости. Он имеет отдельные зеленые зоны и игровую площадку для детей.
ДОМ ВВЕДЁН В ЭКСПЛУАТАЦИЮ!
Другие характеристики
Балкон
Стеклопакеты
Детский сад
Новое здание
Автономное отопление
Домофон
Интернет
Лифт
Школа
Супермаркет
Детская площадка
Бронированная дверь
Кабельное ТВ
Телефонная линия
Внимание! Клиенты, которые выбирают покупку через O’Key Imobil, получают полный спектр профессиональных услуг без каких‑либо дополнительных затрат:
- Корректный анализ рынка, чтобы точно знать реальную стоимость желаемой недвижимости;
- Тщательная юридическая проверка с подготовкой всех необходимых документов для безопасной сделки;
- Идеальное пространство для различных видов коммерческой деятельности, логистики, а также производства и т. п.
Хочу квартиру в ипотеку!
У нас есть более 745 000 квартир, офисов и земельных участков.


















































