ruro
Suntem pe Viber!
+373 (79) 00 97 00

Primește o consultație gratuită din orice colț al lumii!

Apartament, Râșcani, CALEA ORHEIULUI

Adaugă la favorite Păstrat în favorite!
Preț:
92 850
Anunțul a fost vizualizat de 266 ori.
  • Adresa: CALEA ORHEIULUI
  • Oraș: Chișinău
  • Regiune/Sector: Râșcani
  • Suprafață: 51 m2
  • Camere: 2
  • Dormitoare: 2
  • Băi: 1
  • Tip Construcție Nouă
  • Stare: Versiune albă
  • Etaj: 2
  • Total Etaje: 9

Descriere

Spre vânzare apartament amplasat în bloc nou sectorul Râșcani, str. Calea Orheiului.
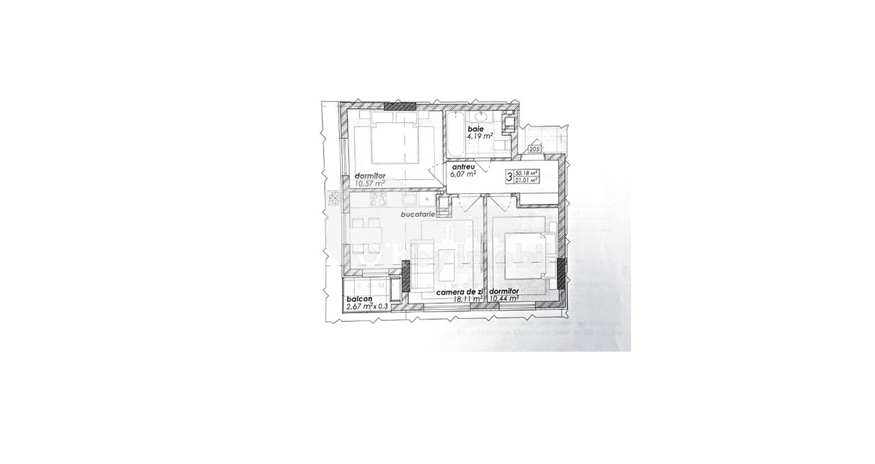
Imobilul are suprafața de 46 mp, fiind poziționat la etajul 2 din 9.
Este compartimentat în: 2 dormitoare, bucătărie cu balcon, antreu, bloc sanitar.

Facilități:
– se prezintă în variantă albă;
– ușă blindată la intrare;
– cazan în condens Immergas;
– rețea electrică și sanitară.

* Darea în exploatare în decembrie 2025.

Locație deosebită – ceea ce îl face foarte atractiv pentru o viață confortabilă.
Este situat la 7 min distanță de sectorul Centru.

Caracteristici și opțiuni

  • Geamuri Termopan
  • Imobil Nou
  • Încălzire Autonomă
  • Teren de Joacă
  • Uşă Blindată
  • Comision zero pentru cumpărători și chiriași!

  • Înregistrarea creditului ipotecar gratis!

  • Deplasarea cu transportul companiei!