ruro
Suntem pe Viber!
+373 (79) 00 97 00

Primește o consultație gratuită din orice colț al lumii!

Apartament, Buiucani, CALEA IEȘILOR

Adaugă la favorite Păstrat în favorite!
Preț:
76 000
Anunțul a fost vizualizat de 95 ori.
  • Adresa: Apartament, Buiucani, CALEA IEȘILOR
  • Oraș: Chișinău
  • Regiune/Sector: Poșta Veche
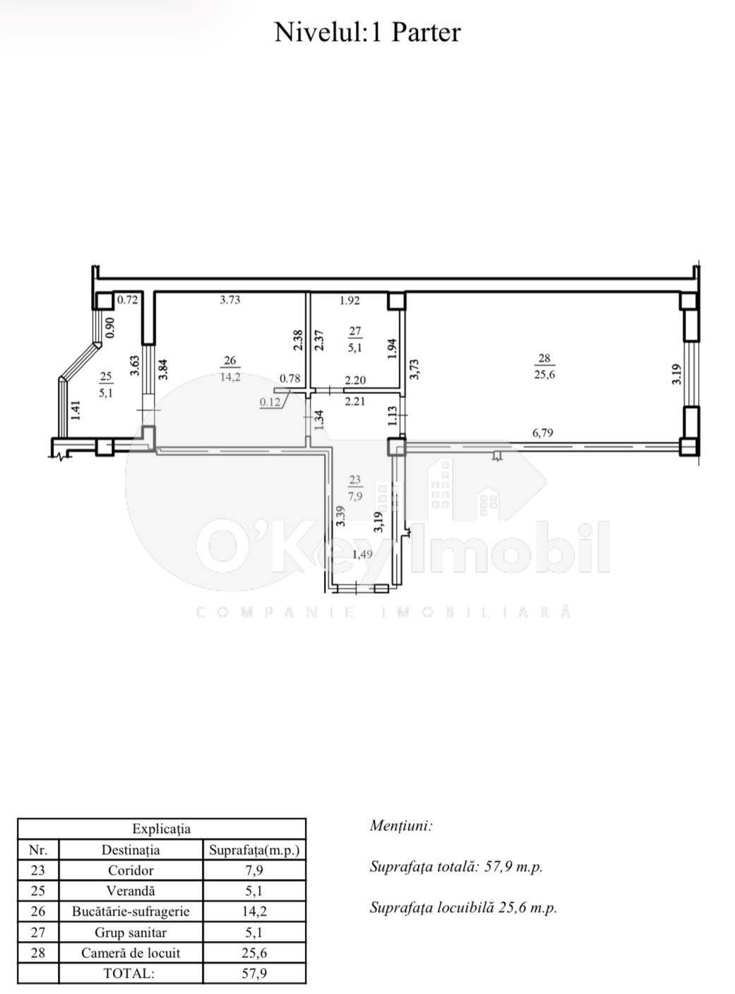
  • Suprafață: 58 m2
  • Camere: 1
  • Dormitoare: 1
  • Băi: 1
  • Tip Construcție Nouă
  • Stare: Versiune albă
  • Etaj: 1
  • Total Etaje: 10

Descriere

Se oferă spre vânzare un apartament spațios, situat într-o zonă verde și liniștită a capitalei – Buiucani, pe str. Calea Ieșilor.
Locuința are o suprafață totală de 58 mp și este amplasată la etajul 1 din 10 al unui bloc nou, dat în exploatare în anul 2025.

Compartimentare: dormitor, bucătărie, bloc sanitar și antreu.

Apartamentul este în variantă albă, oferindu-vă posibilitatea să-l amenajați după propriul gust.
Dispune de încălzire autonomă, ceea ce asigură confort termic și eficiență energetică pe tot parcursul anului.

Zona este apreciată pentru liniște și aer curat, datorită apropierii de pădure, dar și pentru facilitățile din proximitate – restaurantul „Butoiaș”, stații de transport public, magazine, școli și alte puncte de interes.

O alegere ideală pentru cei care caută confort, spațiu și o locație convenabilă într-un cartier verde al orașului!

Caracteristici și opțiuni

  • Geamuri Termopan
  • Imobil Nou
  • Încălzire Autonomă
  • Ascensor
  • Supermarket
  • Teren de Joacă
  • Uşă Blindată
  • Comision zero pentru cumpărători și chiriași!

  • Înregistrarea creditului ipotecar gratis!

  • Deplasarea cu transportul companiei!