ruro
Suntem pe Viber!
+373 (79) 00 97 00

Primește o consultație gratuită din orice colț al lumii!

Spațiu comercial, Telecentru, GHEORGHE ASACHI

Adaugă la favorite Păstrat în favorite!
Preț:
2 760
Anunțul a fost vizualizat de 244 ori.
  • Adresa: GHEORGHE ASACHI
  • Oraș: Chișinău
  • Regiune/Sector: Telecentru
  • Suprafață: 230 m2
  • Tip Construcție Nouă
  • Stare: Versiune albă
  • Etaj: 1

Descriere

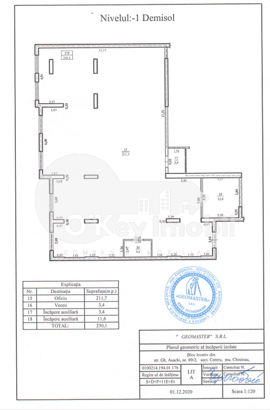
Spre chirie spațiu comercial amplasat în complexul SkyHouse de pe str. Gheorghe Asachi.
Suprafața imobilului cuprinde 230 mp, fiind amplasat la demisolul blocului.
Se prezintă în open space și dispune de bloc sanitar.

Caracteristici:
– variantă albă;
– sistem de încălzire autonomă;
– geamuri termopan;
– intrare separate din curte;
– curte securizată;
– acces 24/24.

Potrivit pentru show room, fitness centru, studii, reprezentanță, agenție, cafenea, birouri etc.
* Prețul NU include TVA!

Caracteristici și opțiuni

  • Geamuri Termopan
  • Imobil Nou
  • Încălzire Autonomă
  • Internet
  • Uşă Blindată
  • Comision zero pentru cumpărători și chiriași!

  • Înregistrarea creditului ipotecar gratis!

  • Deplasarea cu transportul companiei!