Acasă / Imobile în vânzare /Botanica bd. Traian
Apartament, Botanica, BD. TRAIAN
40 m²
Camere: 1
Băi: 1
Nivel: 3/9
84 900 €
2123 €/m2
40 m²
Camere: 1
Băi: 1
Nivel: 3/9
Proprietăți
Regiune
Chișinău, Botanica
Adresa
bd. Traian
Construcție
Veche
Stare
Reparație euro
Suprafață
40.00
Camere
1
Nivel
3/9
Băi
1
Descriere
Spre vânzare apartament amplasat în sectorul Botanica, bd. Traian.
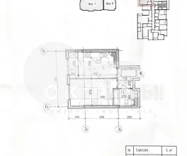
Locuința cuprinde suprafața de 40 mp, fiind poziționată în bloc secundar la etajul 3 din 9.
Compartimentare: un dormitor, balcon, living, bucătărie, bloc sanitar separat.
Se prezintă cu următoarele facilități:
– euroreparație;
– geamuri termopane;
– mobilat și dotat cu tehnică;
– comunicații conectate;
– teren de joacă pentru copii.
O proprietate practică, cu amplasare avantajoasă și compartimentare funcțională, ideală atât pentru locuit, cât și pentru investiție.
Locuința cuprinde suprafața de 40 mp, fiind poziționată în bloc secundar la etajul 3 din 9.
Compartimentare: un dormitor, balcon, living, bucătărie, bloc sanitar separat.
Se prezintă cu următoarele facilități:
– euroreparație;
– geamuri termopane;
– mobilat și dotat cu tehnică;
– comunicații conectate;
– teren de joacă pentru copii.
O proprietate practică, cu amplasare avantajoasă și compartimentare funcțională, ideală atât pentru locuit, cât și pentru investiție.
Alte caracteristici
Balcon
Geamuri termopan
Grădiniţă
Interfon
Internet
Ascensor
Școală
Supermarket
Teren de joacă
Uşă blindată
Cablu TV
Linie telefonică
Atenție! Clienții care aleg să cumpere prin O’Key Imobil se bucură de o gamă completă de servicii profesionale, oferite fără niciun cost suplimentar:
- Analiză corectă a pieței, pentru a ști exact valoarea reală a proprietății dorite;
- Verificare juridică atentă, cu pregătirea tuturor actelor necesare pentru o tranzacție sigură;
- Spațiul perfect pentru diverse tipuri de activități comerciale, logistică, cât și producere etc.
Vreau apartament în ipotecă!
Avem peste 745.000 de apartamente, oficii și terenuri.












































