Acasă / Imobile în vânzare /Ciocana Nicolae Mile...
Penthouse, Ciocana, NICOLAE MILESCU SPĂTARU
119 m²
Camere: 4
Băi: 2
Nivel: 9/10
154 000 €
1294 €/m2
119 m²
Camere: 4
Băi: 2
Nivel: 9/10
Proprietăți
Regiune
Chișinău, Ciocana
Adresa
Nicolae Milescu Spătaru
Construcție
Nouă
Stare
Versiune albă
Suprafață
119.00
Camere
4
Nivel
9/10
Băi
2
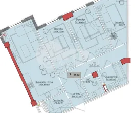
Descriere
Vă propunem spre vânzare un apartament, situat în cadrul complexului Eco City, într-o zonă modernă și bine dezvoltată a sectorului Ciocana.
Imobilul are o suprafață generoasă de 119 mp și este amplasat la etajul 9 și 10, oferind o priveliște spectaculoasă datorită geamurilor panoramice.
Compartimentare funcțională pe 2 niveluri:
Nivelul 1: living, bucătărie, dormitor, bloc sanitar, antreu;
Nivelul 2: 2 dormitoare, bloc sanitar, garderobă, terasa generoasă de 100 mp.
Caracteristici:
– varianta albă;
– geamuri termopane;
– încălzire autonomă;
– comunicații conectate.
Complex construit de compania Estate invest Comapany - dispune de curte închisă, infrastructură dezvoltată și spații comerciale cu toate necesitățile chiar în incintă.
O locuință ideală pentru cei care apreciază confortul, calitatea și un stil de viață modern.
Imobilul are o suprafață generoasă de 119 mp și este amplasat la etajul 9 și 10, oferind o priveliște spectaculoasă datorită geamurilor panoramice.
Compartimentare funcțională pe 2 niveluri:
Nivelul 1: living, bucătărie, dormitor, bloc sanitar, antreu;
Nivelul 2: 2 dormitoare, bloc sanitar, garderobă, terasa generoasă de 100 mp.
Caracteristici:
– varianta albă;
– geamuri termopane;
– încălzire autonomă;
– comunicații conectate.
Complex construit de compania Estate invest Comapany - dispune de curte închisă, infrastructură dezvoltată și spații comerciale cu toate necesitățile chiar în incintă.
O locuință ideală pentru cei care apreciază confortul, calitatea și un stil de viață modern.
Alte caracteristici
Balcon
Geamuri termopan
Grădiniţă
Imobil nou
Încălzire autonomă
Interfon
Internet
Ascensor
Școală
Supermarket
Teren de joacă
Uşă blindată
Cablu TV
Linie telefonică
Atenție! Clienții care aleg să cumpere prin O’Key Imobil se bucură de o gamă completă de servicii profesionale, oferite fără niciun cost suplimentar:
- Analiză corectă a pieței, pentru a ști exact valoarea reală a proprietății dorite;
- Verificare juridică atentă, cu pregătirea tuturor actelor necesare pentru o tranzacție sigură;
- Spațiul perfect pentru diverse tipuri de activități comerciale, logistică, cât și producere etc.
Vreau apartament în ipotecă!
Avem peste 745.000 de apartamente, oficii și terenuri.














































