Acasă / Imobile în vânzare /Ialoveni
Duplex, IALOVENI
310 m²
Camere: 3
Nivel: 2
Teren: 6 Ari
220 000 €
710 €/m²
310 m²
Camere: 3
Nivel: 2
Teren: 6 Ari
Proprietăți
Regiune
Ialoveni
Adresa
Ialoveni
Suprafață
310.00
Camere
3
Nivel
2
Construcție
Nouă
Stare
Versiune albă
Teren
6 Ari
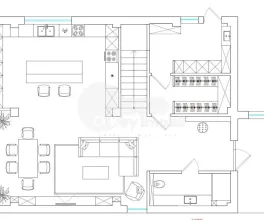
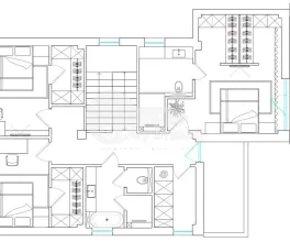
Descriere
Se oferă spre vânzare un duplex modern, situat în orașul Ialoveni, pe strada Dacia, într-o zonă liniștită și bine dezvoltată.
Proprietatea este amplasată pe un teren cu suprafața de 6 ari, casa având o suprafață de 265 mp, la care se adaugă beciul, suprafața totală fiind de 310 mp.
Este compartimentată funcțional pe două niveluri:
Nivelul I: living cu bucătărie (are ieșire la terasă), antreu, bloc sanitar, cazangerie;
Nivelul II: 2 dormitoare (cel matrimonial cu garderobă, bloc sanitar, ieșire la terasă), bloc sanitar.
Imobilul se vinde în variantă albă și este conectat la toate rețelele orășenești.
Beneficiază de pardoseală caldă pe întreaga suprafață a casei și este dotată cu geamuri panoramice, care oferă lumină naturală abundentă și un plus de confort.
Curtea este pavată și urmează a fi amenajată cu gazon și copaci decorativi, creând un spațiu plăcut pentru relaxare.
Locuința reprezintă o alegere ideală pentru o familie care își dorește confort, spațiu și intimitate într-o zonă bună a orașului Ialoveni.
Proprietatea este amplasată pe un teren cu suprafața de 6 ari, casa având o suprafață de 265 mp, la care se adaugă beciul, suprafața totală fiind de 310 mp.
Este compartimentată funcțional pe două niveluri:
Nivelul I: living cu bucătărie (are ieșire la terasă), antreu, bloc sanitar, cazangerie;
Nivelul II: 2 dormitoare (cel matrimonial cu garderobă, bloc sanitar, ieșire la terasă), bloc sanitar.
Imobilul se vinde în variantă albă și este conectat la toate rețelele orășenești.
Beneficiază de pardoseală caldă pe întreaga suprafață a casei și este dotată cu geamuri panoramice, care oferă lumină naturală abundentă și un plus de confort.
Curtea este pavată și urmează a fi amenajată cu gazon și copaci decorativi, creând un spațiu plăcut pentru relaxare.
Locuința reprezintă o alegere ideală pentru o familie care își dorește confort, spațiu și intimitate într-o zonă bună a orașului Ialoveni.
Alte caracteristici
Balcon
Geamuri termopan
Imobil nou
Încălzire autonomă
Internet
Cablu TV
Uşă blindată
Linie telefonică
Atenție! Clienții care aleg să cumpere prin O’Key Imobil se bucură de o gamă completă de servicii profesionale, oferite fără niciun cost suplimentar:
- Analiză corectă a pieței, pentru a ști exact valoarea reală a proprietății dorite;
- Verificare juridică atentă, cu pregătirea tuturor actelor necesare pentru o tranzacție sigură;
- Spațiul perfect pentru diverse tipuri de activități comerciale, logistică, cât și producere etc.
Vreau apartament în ipotecă!
Avem peste 745.000 de apartamente, oficii și terenuri.





































































