Acasă / Imobile în vânzare /Buiucani Vasile Lupu
Apartament, Buiucani, VASILE LUPU
71 m²
Camere: 2
Băi: 1
Nivel: 1/14
134 140 €
1900 €/m2
71 m²
Camere: 2
Băi: 1
Nivel: 1/14
Proprietăți
Regiune
Chișinău, Buiucani
Adresa
Vasile Lupu
Construcție
Nouă
Stare
Versiune albă
Suprafață
70.60
Camere
2
Nivel
1/14
Băi
1
Descriere
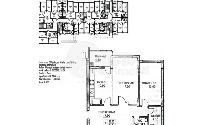
Spre vânzare apartament amplasat în bloc nou sectorul Buiucani, str. Vasile Lupu 28.
Imobilul are suprafața de 70.60 mp, fiind poziționat la etajul 1 din 14.
Este compartimentat în: 2 dormitoare, living, bucătărie cu balcon, bloc sanitar separat.
Facilități:
– se prezintă în variantă albă;
– geamuri de top Kömmerling;
– ușă blindată la intrare;
– cazan în condens Immergas;
– rețea electrică și sanitară;
– scara blocului placată cu marmură și granit.
* Bloc construit de compania Exfactor.
Construcția blocului este din beton armat cu umplutura pereților din cărămidă roșie.
Complexul dispune de parcare subterană în 3 nivele, 2 terenuri de joacă spațioase, havuz în curtea blocului.
Locație deosebită – ceea ce îl face foarte atractiv pentru o viață confortabilă.
Este situat între parcul Valea Morilor și parcul Dendrariu, la 7 min distanță de sectorul Centru.
Alte caracteristici
Geamuri termopan
Imobil nou
Încălzire autonomă
Ascensor
Uşă blindată
Atenție! Clienții care aleg să cumpere prin O’Key Imobil se bucură de o gamă completă de servicii profesionale, oferite fără niciun cost suplimentar:
- Analiză corectă a pieței, pentru a ști exact valoarea reală a proprietății dorite;
- Verificare juridică atentă, cu pregătirea tuturor actelor necesare pentru o tranzacție sigură;
- Spațiul perfect pentru diverse tipuri de activități comerciale, logistică, cât și producere etc.
Vreau apartament în ipotecă!
Avem peste 745.000 de apartamente, oficii și terenuri.













































