Acasă / Imobile în vânzare /Buiucani Alba Iulia
Apartament, Buiucani, ALBA IULIA
100 m²
Camere: 5
Băi: 2
Nivel: 9/10
110 000 €
1100 €/m²
100 m²
Camere: 5
Băi: 2
Nivel: 9/10
Proprietăți
Regiune
Chișinău, Buiucani
Adresa
Alba Iulia
Construcție
Veche
Suprafață
100.00
Camere
5
Nivel
9/10
Băi
2
Descriere
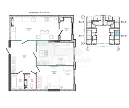
Spre vânzare apartament amplasat în bloc secundar din sectorul Buiucani, str. Alba Iulia.
Imobilul cuprinde suprafața de 100 mp și este poziționat la etajul 9 din 10.
Este compartimentat în: 5 camere, living, bucătărie, 2 blocuri sanitare.
Caracteristici:
– reparație cosmetică;
– încălzire autonomă;
– geamuri termopan;
– mobilat și utilat cu tehnică;
– ușă blindată.
Infrastructura dezvoltată va contribui la o viață mai ușoară și plină de cele mai plăcute impresii.
Alte caracteristici
Geamuri termopan
Încălzire autonomă
Uşă blindată
Atenție! Clienții care aleg să cumpere prin O’Key Imobil se bucură de o gamă completă de servicii profesionale, oferite fără niciun cost suplimentar:
- Analiză corectă a pieței, pentru a ști exact valoarea reală a proprietății dorite;
- Verificare juridică atentă, cu pregătirea tuturor actelor necesare pentru o tranzacție sigură;
- Spațiul perfect pentru diverse tipuri de activități comerciale, logistică, cât și producere etc.
Vreau apartament în ipotecă!
Avem peste 745.000 de apartamente, oficii și terenuri.


























































