Главная / На продажу /Кожушна Кожушна
Дом, КОЖУШНА
150 м2
Ком.: 4
Этаж: 2
Участок: 5 Ары
175 000 €
1167 €/m2
150 м2
Ком.: 4
Этаж: 2
Участок: 5 Ары
Характеристики
Регион
Страшены
Адрес
Кожушна
Площадь
150.00
Комнаты
4
Этаж
2
Строительство
Новое
Состояние
Белая версия
Участок
5 Ары
Описание
Продается дом, расположенный в новом комплексе Cojusna Village, построенном компанией Basconslux.
Дом общей площадью 150 квадратных метров на участке 4,8 сотки земли.
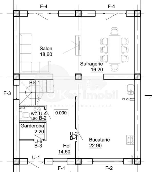
Планировка:
1-й этаж — гостиная, кухня со столовой, санузел, гардеробная, прихожая;
2-й этаж – 3 спальни, 2 ванные комнаты, гардеробная, балкон.
Недвижимость представлена в белом варианте, имеет стеклопакетые окна. Система отопления автономная.
Дом построен из железобетона, утеплен снаружи минеральной ватой. Внутренние стены изолированы ватой.
Жилой сектор с детским садом и собственными точками необходимости. Имеет отдельные зеленые зоны и игровую площадку для детей – место вдали от городского шума, но в то же время в развитом районе.
ДОМ ВВЕДЁН В ЭКСПЛУАТАЦИЮ!
Другие характеристики
Балкон
Стеклопакеты
Детский сад
Новое здание
Автономное отопление
Интернет
Школа
Супермаркет
Детская площадка
Бронированная дверь
Кабельное ТВ
Телефонная линия
Внимание! Клиенты, которые выбирают покупку через O’Key Imobil, получают полный спектр профессиональных услуг без каких‑либо дополнительных затрат:
- Корректный анализ рынка, чтобы точно знать реальную стоимость желаемой недвижимости;
- Тщательная юридическая проверка с подготовкой всех необходимых документов для безопасной сделки;
- Идеальное пространство для различных видов коммерческой деятельности, логистики, а также производства и т. п.
Хочу квартиру в ипотеку!
У нас есть более 745 000 квартир, офисов и земельных участков.























































