Главная / На продажу /Буюканы Василе Короб...
Комм. помещение, Буюканы, ВАСИЛЕ КОРОБАН
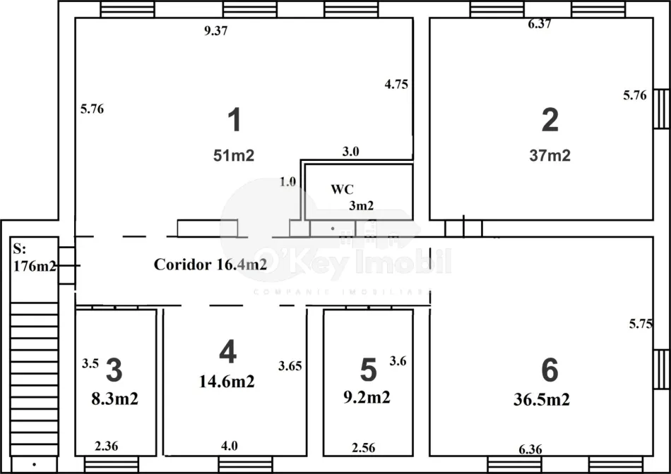
176 м2
Этаж: Подвал
285 000 €
1619 €/m2
176 м2
Этаж: Подвал
Характеристики
Регион
Кишинев
Адрес
Василе Коробан
Площадь
176.00
Этаж
Подвал
Состояние
Евроремонт
Описание
Продается коммерческое помещение в сект. Буюканы.
Здание площадью 176 кв.м. находится на улице Василе Коробан.
Планировка: 4 открытых пространства, ванная комната.
Характеристики:
- находится в новом блоке,
- находится в подвале,
- отдельный вход,
- евро ремонт,
- высота потолков 3,2 м.,
- автономное отопление,
- видеонаблюдение,
- пожарно-охранная система,
- открытая парковка.
Помещение очень удачно расположено, идеально подходит для образовательного центра, спортивного зала, для производства или различных офисных мероприятий и т.д.
Другие характеристики
Стеклопакеты
Новое здание
Автономное отопление
Домофон
Супермаркет
Бронированная дверь
Внимание! Клиенты, которые выбирают покупку через O’Key Imobil, получают полный спектр профессиональных услуг без каких‑либо дополнительных затрат:
- Корректный анализ рынка, чтобы точно знать реальную стоимость желаемой недвижимости;
- Тщательная юридическая проверка с подготовкой всех необходимых документов для безопасной сделки;
- Идеальное пространство для различных видов коммерческой деятельности, логистики, а также производства и т. п.
Хочу квартиру в ипотеку!
У нас есть более 745 000 квартир, офисов и земельных участков.













































