Офис, Центр, ГРИГОРЕ УРЕКЕ
6 457 €
Характеристики
Описание
Сдаётся офис, расположенный в секторе Центр, ул. Григоре Уреке. ПЕРВАЯ ЛИНИЯ!
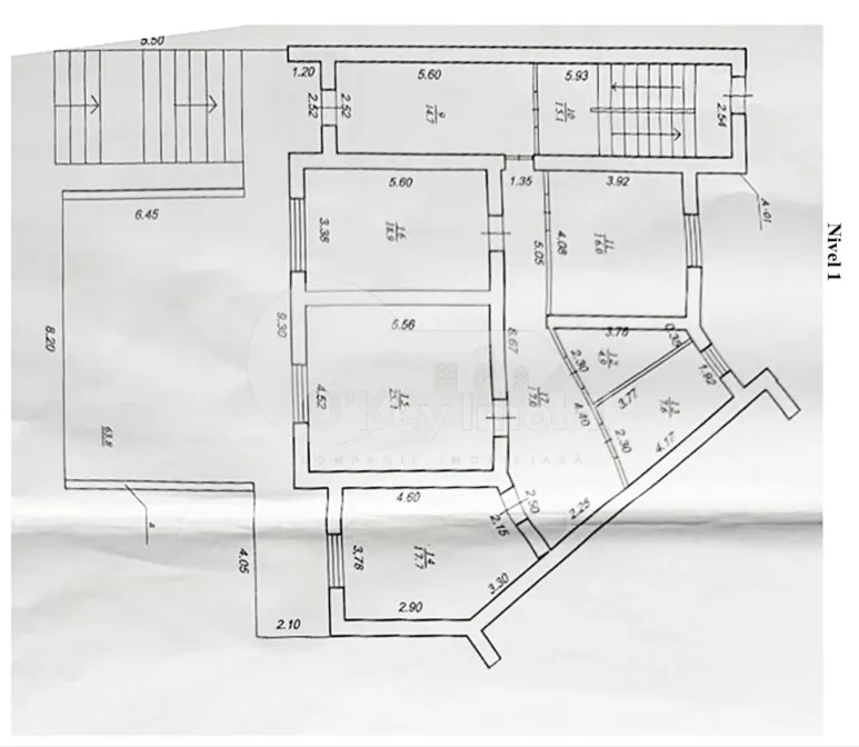
Площадь здания – 534 кв.м. + 53 кв.м.конференц-зал.
Объект расположен на частном участке площадью 6 соток, что обеспечивает простор как внутри, так и снаружи.
Здание состоит из 4 функциональных уровней, всего 18 кабинетов:
Подвал: 131 кв.м.
1-й этаж: 137 кв.м.
2-й этаж: 124 кв.м.
3-й этаж: 143 кв.м.
Преимущества:
– евроремонт;
– автономное отопление;
– 2 отдельных входа;
– собственная котельная с 2 котлами;
– санузлы на каждом этаже;
– кондиционеры в каждом кабинете;
– система сигнализации и видеонаблюдения;
– противопожарная система;
– электроснабжение 380 кВт и солнечные панели (25 кВт);
– 6–10 парковочных мест;
– доступ 24/24.
Благодаря центральному расположению, объект идеально подойдёт для посольств, консульств, международных организаций, представительств, call-центров, IT-компаний, медицинских клиник или других офисных направлений, где важны престиж, удобный доступ и высокий комфорт.
Другие характеристики
Внимание! Клиенты, которые выбирают покупку через O’Key Imobil, получают полный спектр профессиональных услуг без каких‑либо дополнительных затрат:
- Корректный анализ рынка, чтобы точно знать реальную стоимость желаемой недвижимости;
- Тщательная юридическая проверка с подготовкой всех необходимых документов для безопасной сделки;
- Идеальное пространство для различных видов коммерческой деятельности, логистики, а также производства и т. п.






























