Земельный участок, ВАТРА
7 000 €
Характеристики
Описание
Сдается в аренду земельный участок, расположенный в г. Ватра.
Площадь участка: 50 соток (приватизирован).
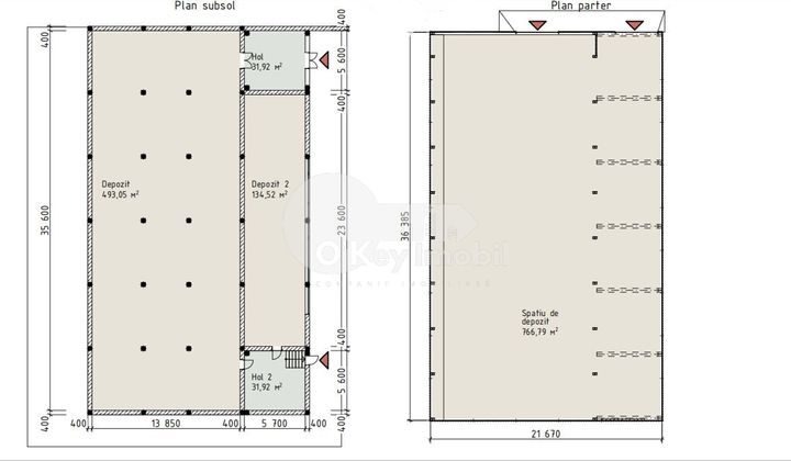
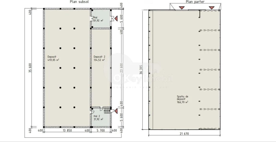
На территории расположен склад площадью 1500 кв.м.
Характеристики:
– Отдельный въезд;
– Частная парковка (5-10 автомобилей);
– Зона погрузки/разгрузки (подходит для фур);
– Система видеонаблюдения;
– Все коммуникации подключены (электричество – 150 кВт, вода, канализация);
– Прямой доступ к общественному транспорту, асфальтированная дорога, удобный въезд для грузовиков.
Расположен в развитой промышленной зоне.
Идеально подходит для производства, складского хранения или автосервиса.
Внимание! Клиенты, которые выбирают покупку через O’Key Imobil, получают полный спектр профессиональных услуг без каких‑либо дополнительных затрат:
- Корректный анализ рынка, чтобы точно знать реальную стоимость желаемой недвижимости;
- Тщательная юридическая проверка с подготовкой всех необходимых документов для безопасной сделки;
- Идеальное пространство для различных видов коммерческой деятельности, логистики, а также производства и т. п.

























