Склад, ВАТРА
7 000 €
Характеристики
Описание
Сдается склад, расположенный в г. Ватра.
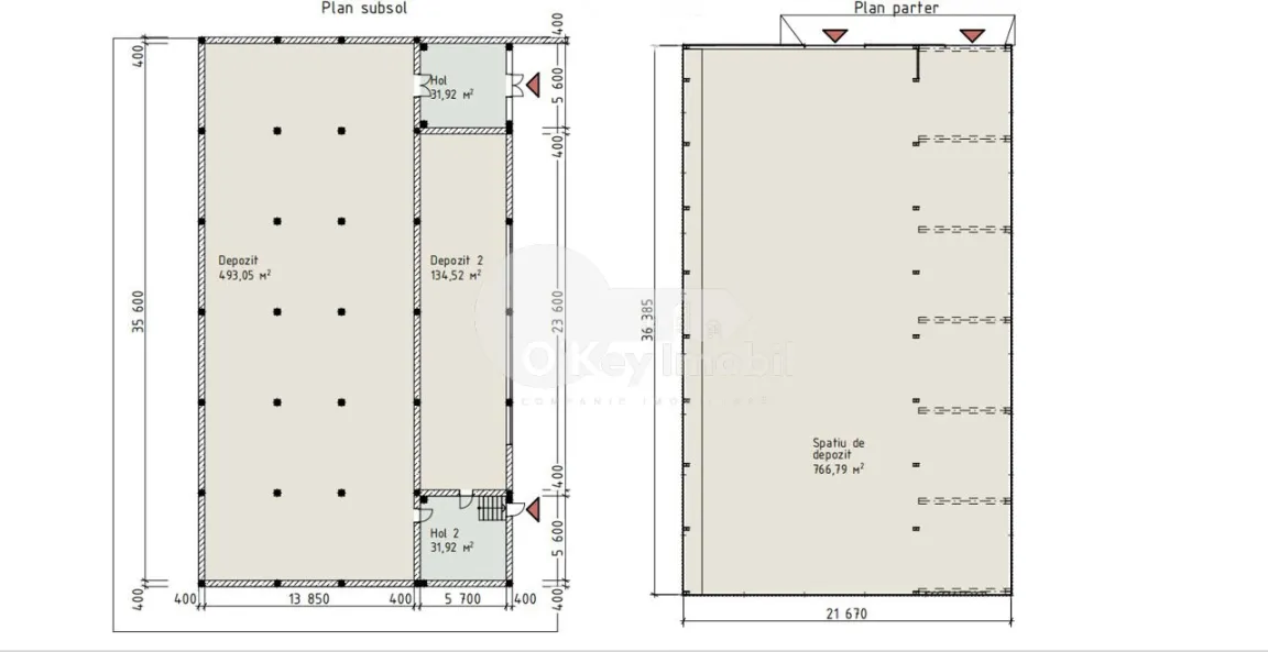
Площадь склада: 1500 кв.м.
Площадь участка: 50 соток (приватизирован).
Разделение пространства:
– Первый уровень – открытое пространство, площадь 760 кв.м., высота потолка 8 м.
– Подвал – площадь 740 кв.м., высота потолка 3.5 м.
Технические характеристики:
– Железобетонное перекрытие 30-60 см по всему периметру;
– Оцинкованные металлические поперечные балки;
– Наружные стены – сэндвич-панели;
– Подвал по всему периметру здания – железобетон, комбинированный с фундаментными блоками.
Особенности локации:
– Отдельный вход;
– Частная парковка (5-10 автомобилей);
– Зона погрузки/разгрузки (подходит для фур);
– Система видеонаблюдения;
– Все коммуникации подключены (электричество – 150 кВт, вода, канализация);
– Прямой доступ к общественному транспорту, асфальтированная дорога, удобный въезд для грузовиков.
Находится в развитой промышленной зоне.
Внимание! Клиенты, которые выбирают покупку через O’Key Imobil, получают полный спектр профессиональных услуг без каких‑либо дополнительных затрат:
- Корректный анализ рынка, чтобы точно знать реальную стоимость желаемой недвижимости;
- Тщательная юридическая проверка с подготовкой всех необходимых документов для безопасной сделки;
- Идеальное пространство для различных видов коммерческой деятельности, логистики, а также производства и т. п.







































