Квартира, Рышкановка, ТУДОР ВЛАДИМИРЕСКУ
123 000 €
Характеристики
Описание
Продается квартира в жилом квартале «Lagmar Smart Home», сектор Рышкановка, ул. Тудор Владимиреску.
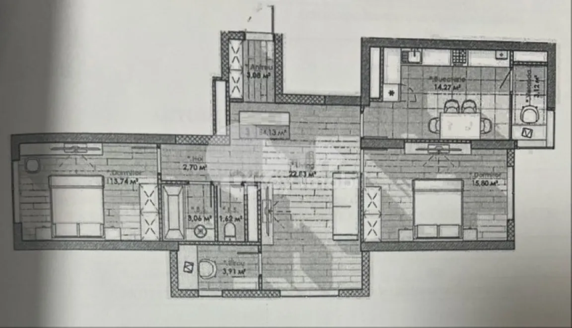
Недвижимость общей площадью 84,13 кв.м.
Характеристики:
– белый вариант;
– панорамные окна;
– автономное отопление;
– звуко- и теплоизоляция;
– квартира расположена в середине здания.
Цена на этапе строительства.
Сдача в эксплуатацию – декабрь 2026 года.
Возможность покупки в рассрочку напрямую у застройщика.
Комплекс расположен в центре столицы. Вблизи находятся: супермаркет, школа, детский сад, торговые центры и многое другое.
Удобный доступ к общественному транспорту.
Другие характеристики
Внимание! Клиенты, которые выбирают покупку через O’Key Imobil, получают полный спектр профессиональных услуг без каких‑либо дополнительных затрат:
- Корректный анализ рынка, чтобы точно знать реальную стоимость желаемой недвижимости;
- Тщательная юридическая проверка с подготовкой всех необходимых документов для безопасной сделки;
- Идеальное пространство для различных видов коммерческой деятельности, логистики, а также производства и т. п.








































