Главная / В аренду /Центр Александру Чел...
Офис, Центр, АЛЕКСАНДРУ ЧЕЛ БУН
430 м2
Тип объекта: Офис
Этаж: Подвал
6 450 €
15 €/m2
430 м2
Тип объекта: Офис
Этаж: Подвал
Характеристики
Регион
Кишинев
Адрес
Александру Чел Бун
Площадь
430.00
Этаж
Подвал
Назначение
Офис
Состояние
Белая версия
Описание
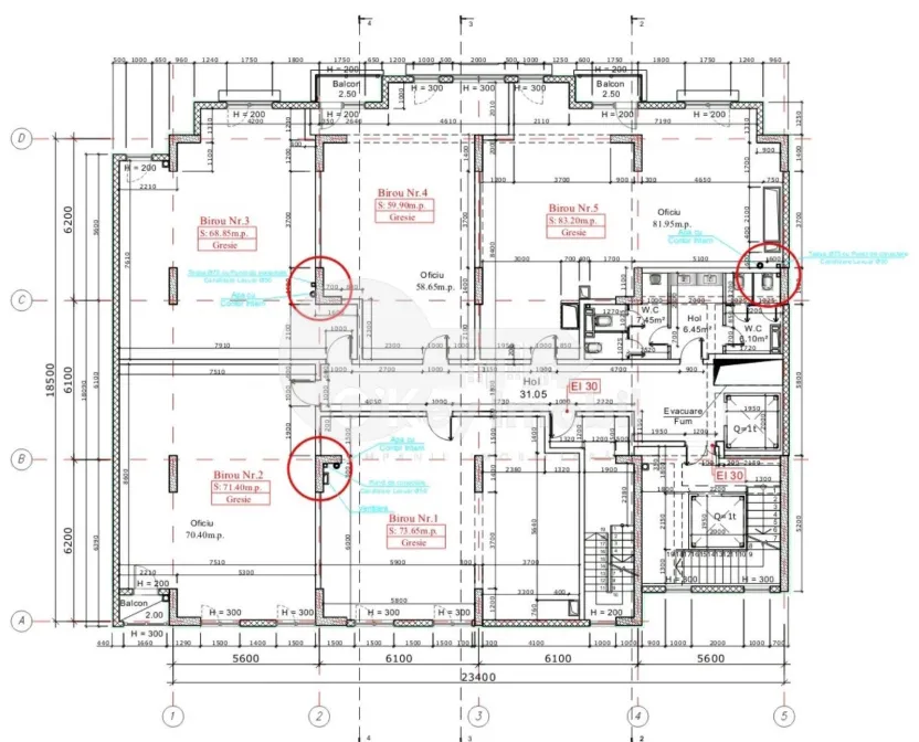
Сдается в аренду офис, расположенный в здании Eminescu Offices, сектор Центр на ул. Александру чел бун.
Недвижимости имеет площадь 430 квадратных метров и разделено на 5 офисов и сан. блоков, 7-й этаж.
Характеристики:
- офис категории А;
- белая версия (ремонт за счёт аренды);
- система кондиционирования и электрического отопления;
- 2 современных лифта;
- панорамные окна;
- доступ 24/7;
- высокий уровень безопасности и конфиденциальности.
Eminescu Offices расположены рядом с самыми важными артериями города.Идеально подходит для любой офисной деятельности, ИТ, представительства, медицинского центра и т. д.
Цена не включает НДС!
Другие характеристики
Стеклопакеты
Новое здание
Внимание! Клиенты, которые выбирают покупку через O’Key Imobil, получают полный спектр профессиональных услуг без каких‑либо дополнительных затрат:
- Корректный анализ рынка, чтобы точно знать реальную стоимость желаемой недвижимости;
- Тщательная юридическая проверка с подготовкой всех необходимых документов для безопасной сделки;
- Идеальное пространство для различных видов коммерческой деятельности, логистики, а также производства и т. п.
Хочу квартиру в ипотеку!
У нас есть более 745 000 квартир, офисов и земельных участков.












































