Главная / На продажу /Страшены
Квартира, СТРАШЕНЫ
79 м²
Ком.: 2
Сануз.: 1
Этаж: 3/9
79 000 €
1000 €/m²
79 м²
Ком.: 2
Сануз.: 1
Этаж: 3/9
Характеристики
Регион
Страшены
Адрес
Страшены
Строительство
Новое
Состояние
Белая версия
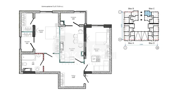
Площадь
79.00
Комнаты
2
Этаж
3/9
Санузлы
1
Описание
Продается квартира, расположенная в новом жилом комплексе в Страшенах. Жилой блок удачно расположен вдали от городского шума, но в то же время в развитом районе.
Общая площадь составляет 79 квадратных метров (белый вариант).
Комплекс состоит из 4 жилых блоков по 9 этажей в каждом.
Корпус комплекса выполнен из железобетона. Здание утеплено снаружи минеральной ватой. Внутренние стены тепло и звукоизолированы ватой.
В квартирах комплекса установлены стеклопакеты и металлические бронированные двери на входе. Система отопления автономная. В квартирах установлены индивидуальные счетчики газа, воды и электричества, розетки для телефона, ТВ, домофона и оптоволоконного интернета.
В жилом комплексе есть индивидуальные зеленые зоны и есть детская игровая площадка. В блоке установлены современные бесшумные лифты, ведущие на подземную автостоянку. Жилой комплекс окружен множеством социальных точек, торговых точек, зеленых зон и достопримечательностей на любой вкус.
Другие характеристики
Балкон
Стеклопакеты
Новое здание
Автономное отопление
Домофон
Лифт
Продуктовый рынок
Супермаркет
Детская площадка
Бронированная дверь
Кабельное ТВ
Телефонная линия
Внимание! Клиенты, которые выбирают покупку через O’Key Imobil, получают полный спектр профессиональных услуг без каких‑либо дополнительных затрат:
- Корректный анализ рынка, чтобы точно знать реальную стоимость желаемой недвижимости;
- Тщательная юридическая проверка с подготовкой всех необходимых документов для безопасной сделки;
- Идеальное пространство для различных видов коммерческой деятельности, логистики, а также производства и т. п.
Хочу квартиру в ипотеку!
У нас есть более 745 000 квартир, офисов и земельных участков.











































