Главная / На продажу /Буюканы Василе Лупу
Квартира, Буюканы, ВАСИЛЕ ЛУПУ
106 м2
Ком.: 3
Сануз.: 2
Этаж: 2/14
174 900 €
1658 €/m2
106 м2
Ком.: 3
Сануз.: 2
Этаж: 2/14
Характеристики
Регион
Кишинев, Буюканы
Адрес
Василе Лупу
Строительство
Новое
Состояние
Белая версия
Площадь
105.50
Комнаты
3
Этаж
2/14
Санузлы
2
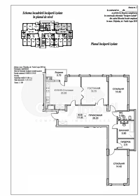
Описание
Продается квартира в новом доме в секторе Буюканы, ул. Василе Лупу 28.
Квартира имеет площадь 105.50 кв. м, находится на 2 этаже из 14.
Планировка: 3 спальни, гостинная, кухня, 2 сан. блока (с окном), балкон, гардеробная и прихожая.
Характеристики:
– белая отделка;
– окна с двойным остеклением Kömmerling;
– бронированная дверь на входе;
– автономное отопление - котел Immergas;
– подъезд облицован мрамором и гранитом.
Дом построен компанией Exfactor.
В комплексе есть подземный паркинг на 3 уровня, 2 просторные детские площадки, фонтан во дворе.
Особое расположение – что делает его очень привлекательным для комфортной жизни.
Другие характеристики
Стеклопакеты
Новое здание
Автономное отопление
Лифт
Школа
Супермаркет
Детская площадка
Бронированная дверь
Внимание! Клиенты, которые выбирают покупку через O’Key Imobil, получают полный спектр профессиональных услуг без каких‑либо дополнительных затрат:
- Корректный анализ рынка, чтобы точно знать реальную стоимость желаемой недвижимости;
- Тщательная юридическая проверка с подготовкой всех необходимых документов для безопасной сделки;
- Идеальное пространство для различных видов коммерческой деятельности, логистики, а также производства и т. п.
Хочу квартиру в ипотеку!
У нас есть более 745 000 квартир, офисов и земельных участков.







































