Квартира, Буюканы, ВАСИЛЕ ЛУПУ
169 000 €
Характеристики
Описание
Продаётся квартира, расположенная в новом доме в секторе Буюканы, ул. Василе Лупу 28.
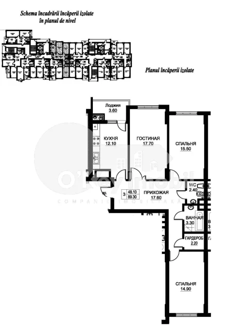
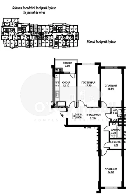
Общая площадь — 89.3 кв.м. квартира находится на 7 этаже из 12.
Планировка: 3 спальни, кухня с балконом, 2 санузла, кладовая, прихожая (есть возможность перепланировки в 3 комнаты и гостиную).
Характеристики:
– продаётся в белом варианте;
– установлены высококачественные окна Kömmerling;
– входная дверь — бронированная;
– конденсационный котёл Immergas;
– электрическая и санитарная сеть выполнены;
– лестница отделана мрамором и гранитом.
Дом построен строительной компанией Exfactor.
Конструкция здания — железобетонный каркас, заполнение стен — красный кирпич.
Комплекс оснащён трёхуровневой подземной парковкой, двумя просторными детскими площадками и фонтаном во дворе.
Уникальное расположение — идеальное для комфортной жизни.
Между парком Valea Morilor и Дендрарием, всего в 7 минутах от сектора Центру.
Другие характеристики
Внимание! Клиенты, которые выбирают покупку через O’Key Imobil, получают полный спектр профессиональных услуг без каких‑либо дополнительных затрат:
- Корректный анализ рынка, чтобы точно знать реальную стоимость желаемой недвижимости;
- Тщательная юридическая проверка с подготовкой всех необходимых документов для безопасной сделки;
- Идеальное пространство для различных видов коммерческой деятельности, логистики, а также производства и т. п.






















































