Квартира, УНГЕНЫ
73 000 €
Характеристики
Описание
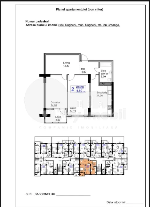
Предлагаем к продаже 2-х комнатную квартиру, расположенную в новом жилом комплексе в г. Унгены, ул. Ион Крянгэ.
Общая площадь квартиры составляет 73 кв.м. предлагается в белом варианте отделки.
Квартиры в комплексе оснащены стеклопакетами, на входе установлены металлические бронированные двери.
Система отопления — автономная.
В квартирах установлены индивидуальные счётчики на газ, воду и электричество, а также розетки для телефона, телевидения, домофона и интернета по оптоволокну.
Каркас здания выполнен из железобетона.
Фасад утеплён минеральной ватой. Внутренние стены также имеют тепло- и звукоизоляцию.
Дом оборудован современными бесшумными лифтами.
Жилой комплекс располагает индивидуальными зелёными зонами и детской площадкой. Вокруг — развитая социальная и коммерческая инфраструктура, множество объектов на любой вкус.
Внимание!
При 100% оплате цена составляет 950 евро/м².
При покупке в рассрочку — 1000 евро/м² с первоначальным взносом 30%.
Сдача в эксплуатацию — 2028 год.
Другие характеристики
Внимание! Клиенты, которые выбирают покупку через O’Key Imobil, получают полный спектр профессиональных услуг без каких‑либо дополнительных затрат:
- Корректный анализ рынка, чтобы точно знать реальную стоимость желаемой недвижимости;
- Тщательная юридическая проверка с подготовкой всех необходимых документов для безопасной сделки;
- Идеальное пространство для различных видов коммерческой деятельности, логистики, а также производства и т. п.







































