Главная / На продажу /alte Унгены
Квартира, УНГЕНЫ
86 м2
Ком.: 3
Этаж: 4/9
86 400 €
1000 €/m2
86 м2
Ком.: 3
Этаж: 4/9
Характеристики
Регион
Унгены, alte
Адрес
Унгены
Строительство
Новое
Состояние
Белая версия
Площадь
86.40
Комнаты
3
Этаж
4/9
Описание
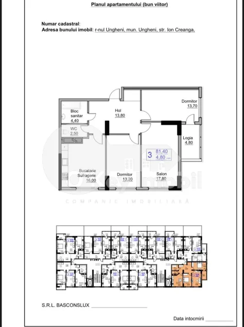
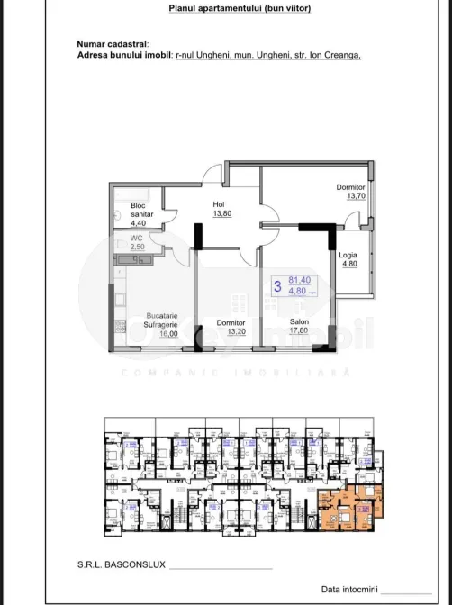
Предлагаем к продаже 3-х комнатную квартиру в новом жилом комплексе в г. Унгень, ул. Ион Крянгэ.
Общая площадь квартиры составляет 86.40 кв.м. предлагается в велом варианте.
Характеристики комплекса:
– Квартиры оборудованы стеклопакетами и металлическими входными дверями;
– Автономное отопление;
– Установлены индивидуальные счетчики на газ, воду и электричество;
– Подключение к телефонной линии, телевидению, домофону и оптоволоконному интернету;
– Каркас здания выполнен из железобетона;
– Внешняя теплоизоляция из минеральной ваты;
– Внутренние стены утеплены и звукоизолированы;
– Оснащен современными бесшумными лифтами.
Жилой комплекс имеет индивидуальные зеленые зоны, оборудованную детскую площадку и находится в окружении социальных объектов, магазинов и мест для отдыха на любой вкус.
Внимание! При полной оплате цена составляет 950 евро за квадратный метр.
При оплате в рассрочку цена составляет 1000 евро за квадратный метр с уплатой первого взноса 30%.
Ввод в эксплуатацию в 2028 году!
Другие характеристики
Балкон
Стеклопакеты
Новое здание
Автономное отопление
Домофон
Интернет
Лифт
Детская площадка
Бронированная дверь
Телефонная линия
Внимание! Клиенты, которые выбирают покупку через O’Key Imobil, получают полный спектр профессиональных услуг без каких‑либо дополнительных затрат:
- Корректный анализ рынка, чтобы точно знать реальную стоимость желаемой недвижимости;
- Тщательная юридическая проверка с подготовкой всех необходимых документов для безопасной сделки;
- Идеальное пространство для различных видов коммерческой деятельности, логистики, а также производства и т. п.
Хочу квартиру в ипотеку!
У нас есть более 745 000 квартир, офисов и земельных участков.







































